ID CP2838477

Vanzare | casa noua | nivel parter | living generos | 3 dormitoare

ID CP2838477

188,000 €

Casă / Vilă cu 4 camere de vânzare
Saldabagiu de Munte
128 mp

Agentia Oradea Imobiliare ofera spre vanzare o casa noua, moderna, pe un singur nivel, finisata, situata intr-o zona rezidentiala in plina dezvoltare, aproape de intersectia str. Izvorului cu str.Piersicilor - pe str.Artelor/ Saldabagiu de Munte.

Aceasta casa imbina confortul, functionalitatea si designul contemporan – un loc perfect pentru cei care cauta intimitate, aer curat, spatii luminoase si un stil de viata relaxat, la 3,5 km de str. Stefan cel Mare.

___

🏡 Detalii proprietate:

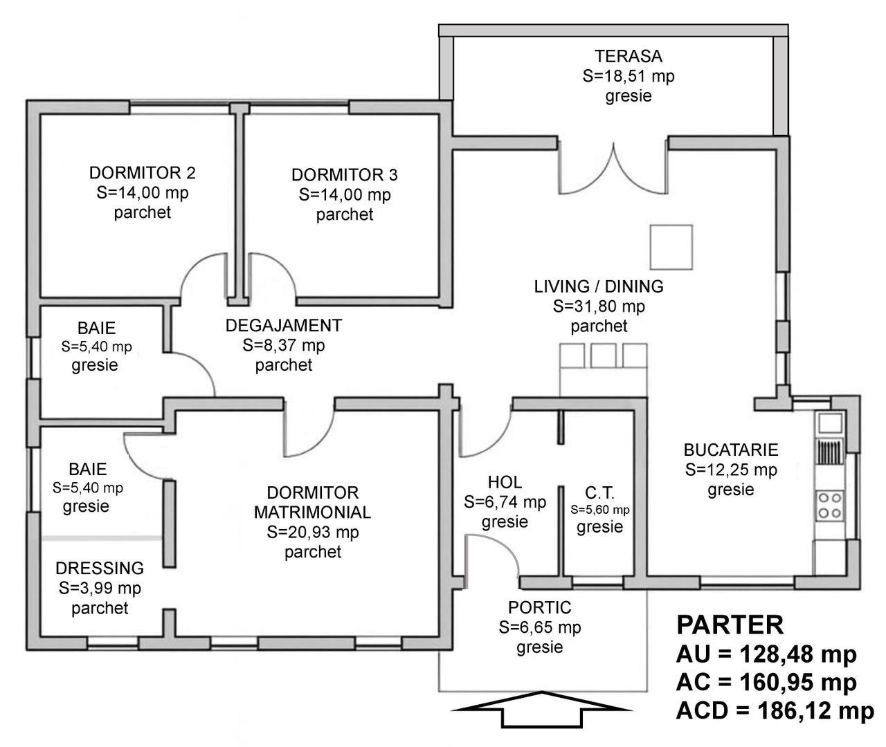
✅suprafata teren: 616 mp;

✅suprafata construita: 161 mp;

✅suprafata utila: 128 mp;

✅aria construita desfasurata: 186 mp;

✅proprietate imprejmuita cu gard.

___

🧩 Compartimentare:

✅ living spatios (SU = 31,80 mp) open-space cu bucataria (SU = 12,25 mp);

✅3 dormitoare (un dormitor matrimonial SU = 21 mp cu baie propirie si dressing);

✅a 2 baie cu geam de aerisire (prevazuta cu cada);

✅camera tehnica;

✅2 holuri;

✅terasă acoperita.

___

⚙️ Dotari si finisaje:

✅Utilitati: apa, curent electric;

✅Pereti finisati: glet + lavabila alba;

✅Incalzirea in pardosea in toata casa, asigurata de pompa de caldura aer-apa marca Ferroli;

✅Instalatiile sanitara si electrica trase pe pozitie;

✅Tamplarie PVC, geamuri – 3 foi de sticla;

✅Gresie/ faianta pe terasa, holuri, in bucatarie si bai;

✅Parchet laminat in living si dormitoare;

✅Izolatie exterioara 10 cm;

✅Glafuri, pervaze, acoperis cu tigla, tencuiala decorativa;

✅Trotuar perimetral imprejurul casei.

___

💰 Pret vanzare: 188.000 euro.

📞 Contacteaza-ne pentru mai multe detalii sau pentru a programa o vizionare!

Citește mai mult

  • Număr camere
    4
  • Dormitoare
    3
  • Număr bucătării
    1
  • Număr băi
    2
  • Geam la baie
    Da
  • Număr terase
    1
  • Disponibilitate
    Imediat
  • Tip casă
    Individual
  • Stare interior
    Finisat modern
  • Suprafață utilă
    128 mp
  • Suprafață construită
    186 mp
  • Suprafață teren
    616 mp
  • Suprafață terasă
    19 mp
  • Acoperiș
    Țiglă
  • Stadiu construcție
    Finalizată
  • Construcție nouă
    Da
  • Tip construcție
    Cărămidă
  • Număr etaje clădire
    1

Facilități

Acoperiș
Apă
Apometre
Bucătărie deschisă
Contor electric
Curent
Curte
Faianță
Ferestre PVC
Geamuri tripan
Gresie
Încălzire prin pardoseală
Parchet laminat
Pompă de căldură
Străzi asfaltate
Străzi pietruite
Ușă intrare PVC
Vopsea lavabilă
Teodor .
Manager

0757 398 226


Solicită chiar acum o vizionare
Telefon
Sună acum Solicită vizionare
Necesare:

Site-ul nu poate funcționa corect fără aceste cookie-uri. Vezi cookie-urile

Statistică:

Strângem statistici anonime despre voi, vizitatorii unici, pentru a vă îmbunătăți experiența dumneavoastră. Vezi cookie-urile

Marketing:

Pentru a ne promova mai eficient serviciile noastre, folosim cookies pentru a vă identifica și a vă oferi proprietăți și servicii personalizate. Vezi cookie-urile

Acest site folosește cookies, află detalii. Alege ce tipuri de cookies dorești să permitem: